Pavillon de jardin en bois semi fermé MITCH 10,50 m2

Un chalet BARBABOIS c'est choisir :

  • La réalisation de votre chalet en bois de même essence, séché artificiellement à 14/18 %, en provenance d'Europe du Nord, de première catégorie, homologué FSC et PEFC. 
  • Les raccords angulaires vous assurent une imperméabilité à l'eau et au vent. 
  • Offrant une grande variété de choix, d'assortiment d'accessoires et de matériaux tel que les toitures, les terrasses, les portes, les fenêtres, les serrures et les imprégnations ou pulvérisations. 
  • L'assemblage de votre chalet pourra aussi être assuré par nos équipes partenaires de montage. 
  • Nous vous proposons plus de 150 modèles différents, mais nous avons la possibilité de réaliser votre chalet sur-mesure.

Votre configuration

Pas de showrooms liés

Commentaires (0)
Aucun avis n'a été publié pour le moment.

Pavillon - Cabanon MITCH en sapin non traité de 10,50 m2.

Essence non traité(e)(s), raboté(e)(s) sapin 

Épaisseur paroi : 28 mm

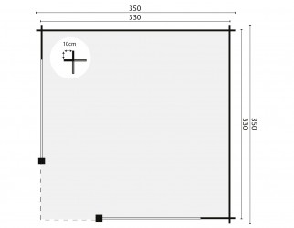
Dimensions : 350x350 cm 

Dimensions des fondations : 330x330 cm

Hauteur du faîte : env. 269 cm

Options disponibles :

- Bardeaux (3 formes et 5 couleurs différentes)

- Scellant bitumineux

- Gouttières galvanisées ou plastiques 

- Chapeau avec boule

Afin de conserver et protéger le bois votre chalet, Barbabois vous propose une gamme de produits d'entretien parfaitement adaptés en cliquant ici.

P014272

Fiche technique

Superficie
entre 5 et 20 m2
Épaisseur du bois
19 à 40 mm

Vous aimerez aussi...