Le spécialiste de l'aménagement extérieur
Référence : P015062
Épaisseur du bois : 70 mm
En pin non traité, raboté
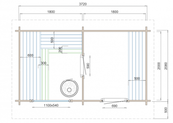
Dimensions : 372x208 cm
1 fenêtres à ouvrir
Verre isolant trempé
Porte simple
Les portes et les fenêtres sont en verre trempé teinté bronze
Plancher en bois compris
Gouttière en métal pour les eaux usées du sauna et banc en bois d'aulne à 2 niveaux inclus.
Sans poêle de sauna
Couverture de toit
Dossier banc
Fenêtre supplémentaire à ouvrir (110x54 cm)
Terrasse et auvent